본문 바로가기

관급자재(광섬유 인조석 블럭(원톤) 사전규격공개(청라 커넬웨이 경관개선사업(2단계)
  • 작성일 : 2022-11-14
  • 조회수 : 233
  • 담당부서 청라관리과 (032-453-7693)

1.청라 커넬웨이 경관개선사업(2단계) 관련입니다.

2.관급자재(광섬유 인조석 블럭(원톤)) 사전규격을 다음과 같이 공개합니다.

  - 공개기간: 공개일로부터 5일

  - 공개내역: 붙임참조 

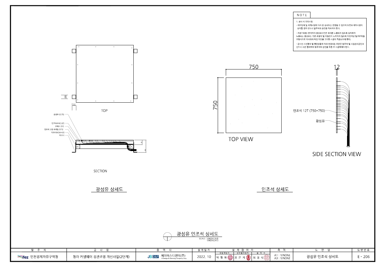
 품명 및 규격

 단위

 수량 

 비고 

 광섬유 인조석 블럭

 (원톤)

750X750XH12mm 

 SET

 179

 

 ※ 문의사항은 인천경제자유구역청 청라관리과 반혜화(032-453-7693)으로 연락해 주시기 바랍니다.

  

이 페이지에서 제공하는 정보에 만족하십니까?
  • 담당부서 : 운영지원과
  • 문의처 : 032-453-7164